Sibiu House
house em Sibiu, Romênia
project: Studio Papaya
images: Studio Papaya
year: 2017 (ongoing)
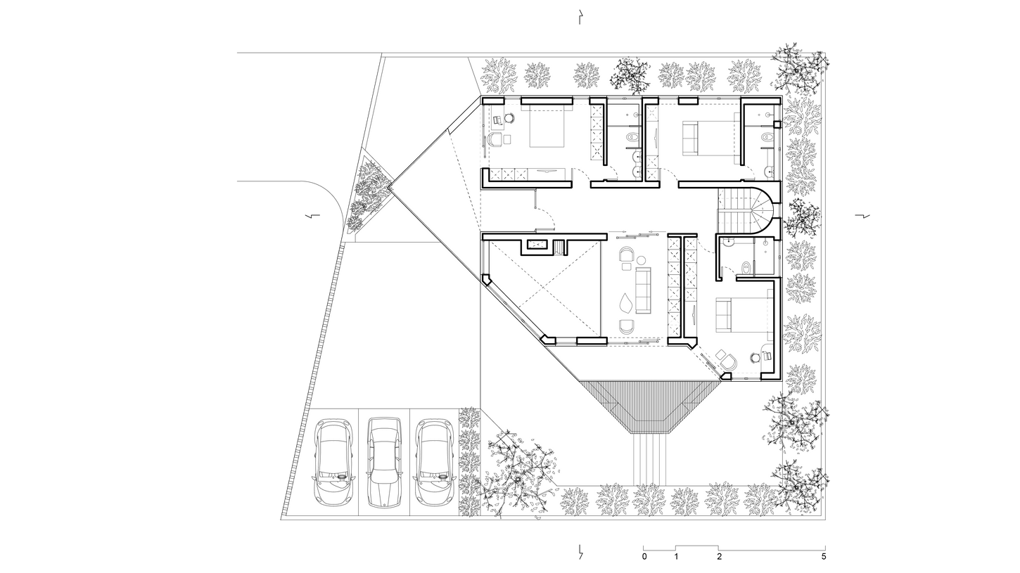
The Sibiu House started with a client from India, married to a Romanian, both living in Dubai, with the desire to build a residence for the family, on the outskirts of the historic city of Sibiu, in the central region of Romania. . Despite the physical limitations that came with the remote developing of the project, the process and the relationship with clients were extremely pleasant.
We were in charge of developing the first phases of the Architectural Project, on a site with a privileged view of the Făgăraș Mountains. The highlight of this view became the starting point of the project, and also came with the challenge of reconciling large windows with the need for internal heating of the house during the winter. In order to enhance the view, the facade takes on different angles, creating a game of volumes that mimics the peaks seen on the horizon. The extensive program includes 2 bedrooms and 2 suites, library, home cinema, toy room, office, living room, dining room, kitchen, wine cellar with games room and an outdoor living area. Arranged over 2 floors, the rooms are surrounded by the double-height living room, that becomes the heart of the house.










